Обяви За нас Контакти
Продава ПРОМ. ПОМЕЩЕНИЕ
град Пловдив, Индустриална зона - Марица
При запитване
История на цената
Публикувана в 11:08 на 6 февруари, 2026 год.
Обявата е посетена 226 пъти.
Площ:
315 m2
Строителство:
Сглобяема конструкция, Ще бъде въведен в експлоатация 2027 г.

Описание на имота:


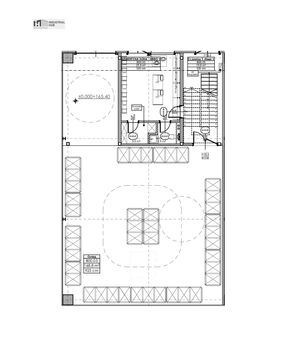
Индустриално складово помещение с офис и търговска част

ID:Base Plus 3

Предлагаме за продажба функционално индустриално складово помещение в Industrial Hub Plovdiv Ring West I, подходящо за складова, логистична, търговска или сервизна дейност.

Площи:
-Застроена площ (ЗП): 230m²
-Разгъната застроена площ (РЗП): 315 m²
-Склад: 168,8 m²
-Офис: 42,8 m²
-Търговски обект: 22 m²
-Битови помещения: 20,6 m²

Паркоместа и зони за индивиуално ползване:
-Зона за паркиране и зареждане: 85 m²
-Паркоместа: 3 бр.

Конструкция и материали:
-Монтажна стоманобетонова конструкция
-Окачена стъклена фасада
-Сандвич панели с минерална вата
-Покрив с TPO мембрана (312 kN/m²)
-Шлайфана бетонова подова настилка
-Алуминиева дограма
-Огнеустойчиви врати до 90 мин.

Технически параметри:
-Височина склад 9m до ЛТ ламарина
-Височина шоурум/офис 4m до ЛТ ламарина
-Размери на товарем вход: Ш 3m. х В 3,5m.
-Осветеност: 566 lux
-Инсталирана мощност: 50 kW
-Максимална мощност: 30 kW
-Трифазно електрическо табло

Имотът е самостоятелен с индивидуален кадастрален идентификатор и отделни партиди за ток и вода. Разполага с удобен достъп за товарни автомобили и възможност за комбиниране на склад, офис и търговска дейност на едно място.

Инвеститорът осигурява професионална поддръжка на обекта:
-FTP интернет инфраструктура
-24/7 видеонаблюдение
-Зарядни станции за електромобили
-Пълна ВиК система
-Дренаж и локална пречиствателна станция
-Дизелов агрегат

Първият индустриален парк в България за малкия и среден бизнес - Industrial Hub Plovdiv Ring West I.

www.industrialhub.bg
Особености
Сглобяема конструкция
С паркинг
Интернет връзка
Видео наблюдение
Контрол на достъпа
Охрана
За контакт:
0882642715
Строителна фирма:
ИНДЪСТРИЪЛ ХЪБ
0882 642 715
ИНДЪСТРИЪЛ ХЪБ logo
В imot.bg от 2026 г.
industria_hub.imot.bg
Адрес:
област Пловдив, гр. Пловдив, 203639247
ИЗПРАТИ ЗАПИТВАНЕ
ИЗПРАТИ ЗАПИТВАНЕТО

Продава ПРОМ. ПОМЕЩЕНИЕ
град Пловдив, Индустриална зона - Марица
Обява: 1p177036892078963

При запитване
История на цената

ЗАПАЗИ ОБЯВАТА

Местоположение: град Пловдив, Индустриална зона - Марица

Допълнителни данни за имотите в района и сравнение с други райони

Покажи

Период

и 3 месеца

* Средните цени са определени чрез медианна стойност